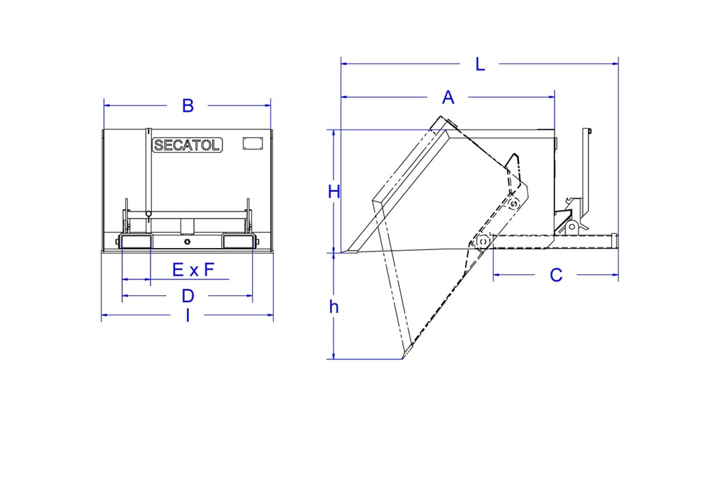
Pelle basculante de reprise au tas
Présentation de la pelle basculante
✔ Elle est adaptable sur les fourches d’un chariot élévateur et peut être commandée du poste de conduite. La lame est renforcée afin de garantir la longévité de cette pelle basculante.
Utilisation de la pelle basculante
✔ Reprise au tas, chargement, transport, stockage et mise en place des matériaux les plus divers tels que sable, graviers, gravats, sciure, céréales, feuilles mortes, déchets, etc.
Pour plus d'infos ou un devis, contactez nous !
01 76 34 00 39 - contact@cmtgroup.fr ou via notre formulaire de contact 👉
Équipements et outillages
Pour les professionnels du bâtiment et de la construction
Travaux en hauteur
Échafaudage, PIRL, quai de déchargement, échelle de talus, saut de loup, nacelle...Trouvez tous les équipements qu'il vous faut.
Équipement gros œuvre
Bennes à béton, plaque vibrante, pilonneuse...Tout pour le travail du béton ! Ainsi que des clôtures temporaires pour protéger les travailleurs et sécuriser les chantiers.
Mais aussi de nombreux corps de métiers
Peintres, maçons, menuisiers, électriciens, plombiers...trouvez l'outillage et les vêtements de travail (EPI) dont vous avez besoin.
Livraison partout en France
2 dépôts : Toulon - Paris
Région PACA
Marseille, Martigues, Aubagne, La Ciotat, Toulon, Cannes, Nice, Monaco : plus de proximité pour répondre au mieux à vos besoins en équipements de chantier.
Région parisienne
Seine et marne, Yvelines, Hauts de Seine, Essonne, Val de Marne, Val d'Oise, Paris...CMT vous livre partout en région Île-de-France.
Mais aussi partout en France et à l'étranger
Toulouse, Lyon, Bordeaux, Strasbourg, Nantes, Lille...CMT vous livre ! Les livraisons sont aussi possibles en Belgique et au Luxembourg.





